Default sidemenu image
Search

Leave a Message

Thank you for your message. We will be in touch with you shortly.

Explore Our Properties

Property Description

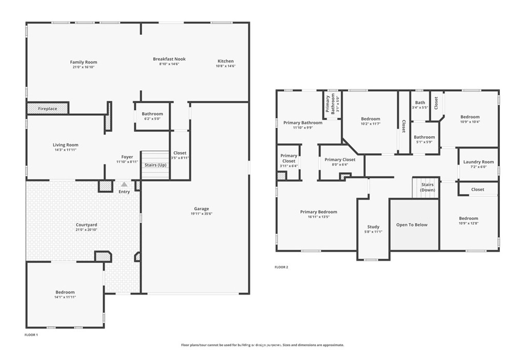
BACK ON MARKET! The One You've Been Waiting For -- Refined Harveston Luxury Living. Welcome to a lifestyle of elegance and ease in the heart of Temecula's most enchanting neighborhood, Harveston. Tucked away on one of the largest and most private lots in the community, this rare residence is more than a home, it's an experience. Behind a gated courtyard, discover a tranquil space ideal for morning espresso or evening wine. The detached spacious casita offers exceptional versatility--perfect for overnight guests, a luxe office, or an inspired creative studio. Step inside and be greeted by rich hardwood floors, custom designer details, and a warm, light-filled interior. The chef's kitchen is the heart of the home, featuring stone countertops, a custom backsplash, new stainless range, appliances, and an expansive island built for both entertaining and everyday indulgence. The primary suite is a true retreat--complete with private balcony access, new quartz countertops, and an expanded spa-style shower. A romantic spiral staircase connects your suite to the showpiece of the home: the resort-inspired backyard. Here, luxury reaches new heights. Enjoy a sparkling pool and spa, cascading fire bowls and water features, a sunken swim up bar area with a built-in fridge and sink. The covered patio with dramatic wood beams that evoke the timeless elegance of Santa Barbara. An outdoor hidden bathroom, multiple lounge areas, a cozy fire pit, and lush garden spaces make this an entertainer's dream. Best of all? No rear neighbors--just serene open skies. It even has an RV dump. Very rare! Plenty of room for a third car in tandem in garage! Directly across the street, the Harveston Lake Clubhouse offers even more upscale amenities: a junior olympic pool, spa, outdoor fireplace, rolling lawns, and an 18-acre lake surrounded by charming tree-lined streets and vintage-style lampposts. Located just minutes from Temecula's award-winning wineries, top-rated schools, fine dining, and freeway access. This extraordinary home offers the perfect blend of luxury, comfort, and lifestyle. This is not just a home. This is a statement. This is your sanctuary. This is Temecula.

Overview

Open House
12/14/2025 12:00PM - 3:00PM PST
Property Status
For Sale
Lot Size
7,841 Sq.Ft.
MLS ID
SW25150335
Property Type
Residential
Year Built
2005

Features & Amenities

Neighborhood
Riverside County
Architecture Styles
Mediterranean
View Description
Park/Greenbelt, Trees/Woods
Stories
2
Garage Spaces
3.0
Water Source
Public
Utilites
Cable Connected, Natural Gas Connected, Sewer Connected, Water Connected
Pool
Community, Fenced, Gas Heat, In Ground, Private, Solar Heat, Waterfall, Association
Lot Features
Back Yard, Drip Irrigation/Bubblers, Front Yard, Sprinklers In Rear, Sprinklers In Front, Irregular Lot, Landscaped, Sprinklers Timer, Sprinklers On Side
Parking
Door-Multi, Direct Access, Garage, Garage Door Opener, Tandem
Heat Type
Central, Forced Air
Air Conditioning
Central Air
Laundry Room
Washer Hookup, Inside, Laundry Room, Upper Level
Fireplace
Family Room, Gas
Appliances
Dishwasher, Disposal, Gas Range, Gas Water Heater, Microwave
Other Interior Features
Breakfast Bar, Ceiling Fan(s), Granite Counters, High Ceilings, Quartz Counters, Recessed Lighting, All Bedrooms Up, Walk-In Closet(s)
Sewer
Public Sewer
Substructure
Slab
HOA Amenities
Boat House, Clubhouse, Meeting Room, Picnic Area, Playground, Pool, Spa/Hot Tub, Trail(s)
Security Features
Carbon Monoxide Detector(s), Smoke Detector(s)
Other Exterior Features
Rain Gutters
Middle School
James Day
High School
Chaparral
School District
Temecula Unified
Sales Price
$1,045,000
HOA
$133/mo

Downloads

28889 Edenton Way

Schedule a Tour

We would love to help you see this beautiful home! As a full-service brokerage, we can help you tour.

Enter a valid email

Thank you

for your interest in 28889 Edenton Way, Temecula, CA 92591

back to page
28889 Edenton Way
Navigate

Riverside County

Explore Riverside County

The county’s most notable destinations for vacations from daily life include Palm Springs, Palm Desert, and Perris.

read more
28889 Edenton Way
explore in 3d

Mortgage Calculator

Estimate your monthly mortgage payment, including the principal and interest, property taxes, and HOA. Adjust the values to generate a more accurate rate.
$0,000 Your Payment 20 15 65
$0,000 Your Payment

I'm Interested In

28889 Edenton Way

or
  • CallSaundra Stormer

    License #01308120

    951-541-4555
  • Based on information submitted to the MLS GRID as of . All data is obtained from various sources and may not have been verified by the broker or MLS GRID. Supplied Open House Information is subject to change without notice. All information should be independently reviewed and verified for accuracy. Properties may or may not be listed by the office/agent presenting the information.