Default sidemenu image
Search

Leave a Message

By providing your contact information to FirstTeam® Real Estate, your personal information will be processed in accordance with FirstTeam® Real Estate's Privacy Policy. By checking the box(es) below, you expressly consent to receive marketing or promotional real estate communication from FirstTeam® Real Estate in the manner selected by you. For SMS text messages, message frequency varies. Message and data rates may apply. Consent is not a condition of purchase of any goods or services. You may opt out of receiving further communications from FirstTeam® Real Estate at any time. To opt out of receiving SMS text messages, reply STOP to unsubscribe. SMS text messaging is subject to our Terms of Use.

Thank you for your message. We will be in touch with you shortly.

Explore Our Properties

Property Description

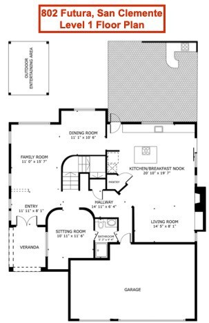
PRICE REDUCTION!! Combining the best of coastal living with refined elegance 802 Futura is a stunning 5 bedroom/4 bath home nestled in the ocean view neighborhood of Harbor Ridge. This home's gorgeous details start with fabulous custom mouldings at the double door entry & luxury vinyl wood flooring that extends throughout the home. The floor-to-ceiling windows in the living room & dining room allow natural light to fill the space while offering serene views of the tree-lined backyard. You will love the spacious center island kitchen, finished with soft gray cabinetry, marble & travertine counters, & a custom stackstone backsplash. It's a chef's dream, complete with a copper farm sink & a full suite of stainless steel appliances, including a separate beverage refrigerator. A walk-in pantry with custom frosted glass door keeps everything in its place. Adjacent to the kitchen, a casual dining area is perfect for quick meals, & the family room, with cozy fireplace, seamlessly flows from the kitchen. The main floor also includes a convenient bedroom & full bath. Upstairs, you'll find 4 additional bedrooms, including a gorgeous primary suite with tranquil treetop views. The primary en suite features updated cabinetry in a soothing gray finish, a dual sink vanity, separate soaking tub, shower, private toilet area, & a walk-in closet with custom build-out. 2 of the spacious upstairs guest rooms share a hall bath with a dual sink vanity & a split design, while the 3rd upstairs guest room enjoys its own en suite for ultimate privacy. The cabinetry & woodwork throughout the house are finished in beautiful gray and white tones, complemented by custom brass hardware on all the doors. Custom light fixtures, LED lighting, & stunning custom moldings add to the aesthetic appeal. Practical upgrades include updated HVAC system & water heater for year-round comfort & efficiency. The 3-car garage features epoxy flooring, custom cabinetry, & overhead storage racks, keeping everything organized. The backyard is a private oasis for relaxation & entertainment, with a custom-built BBQ bar area, turf grass, a spa, custom brick & stone hardscaping, & lush landscaping. Set on a cul-de-sac, this home enjoys a prime location with easy access to award-winning schools, Lifetime Fitness, shops, dining options, & freeways. Within minutes you can explore miles of trails, world-class beaches, the renowned San Clemente Pier, & the vibrant downtown scene. Your best life starts here!

Overview

Property Status
Sold
Lot Size
5,610 Sq.Ft.
MLS ID
OC23117422
Property Type
Residential
Year Built
1997

Features & Amenities

Neighborhood
Orange County
Architecture Styles
Mediterranean
View Description
Neighborhood, Trees/Woods
Stories
2
Garage Spaces
3.0
Water Source
Public
Utilites
Cable Connected
Pool
None
Roof
Spanish Tile
Lot Features
Back Yard, Cul-De-Sac, Front Yard, Landscaped, Level, Near Park, Sprinkler System, Street Level, Trees
Parking
Concrete, Door-Multi, Direct Access, Driveway, Garage Faces Front, Garage, Garage Door Opener, Side By Side
Heat Type
Central, Fireplace(s), Natural Gas
Air Conditioning
Central Air
Laundry Room
Washer Hookup, Electric Dryer Hookup, Gas Dryer Hookup, Inside, Laundry Room, Upper Level
Fireplace
Family Room, Gas, Gas Starter
Appliances
Barbecue, Convection Oven, Dishwasher, Electric Oven, Disposal, Gas Range, Gas Water Heater, Microwave, Refrigerator, Range Hood, Self Cleaning Oven, Water Softener, Vented Exhaust Fan, Water To Refrigerator, Water Purifier
Other Interior Features
Ceiling Fan(s), Crown Molding, Cathedral Ceiling(s), Granite Counters, High Ceilings, Open Floorplan, Pantry, Stone Counters, Recessed Lighting, Tile Counters, Two Story Ceilings, Wired for Sound, Bedroom on Main Level, Entrance Foyer, Primary Suite, Walk-In Pantry, Walk-In Closet(s)
Sewer
Public Sewer, Sewer Tap Paid
Substructure
Slab
HOA Amenities
Maintenance Grounds, Barbecue, Picnic Area, Playground, Security, Trail(s)
Security Features
Carbon Monoxide Detector(s), Fire Detection System, Fire Sprinkler System, Smoke Detector(s)
Other Exterior Features
Lighting, Rain Gutters
Elementary School
Lobo
Middle School
Bernice
High School
San Clemente
School District
Capistrano Unified
Sales Price
$1,750,000
HOA
$85/mo

Downloads

802 Futura

Schedule a Tour

We would love to help you see this beautiful home! As a full-service brokerage, we can help you tour.

Thank you

for your interest in 802 Futura, San Clemente, CA 92672

802 Futura
Navigate

Orange County

Explore Orange County

Known for its luxurious beachfront estates, high-end cultural lifestyle, and The Happiest Place on Earth.

read more
802 Futura
explore in 3d

I'm Interested In

802 Futura

or Contact
Based on information submitted to the MLS GRID as of . All data is obtained from various sources and may not have been verified by the broker or MLS GRID. Supplied Open House Information is subject to change without notice. All information should be independently reviewed and verified for accuracy. Properties may or may not be listed by the office/agent presenting the information.